Hualang Bridge

From HighestBridges.com
Jump to navigationJump to search

Hualang Bridge
画廊特大桥
Shuiba, Guizhou, China
292 feet high / 90 meters high
131 foot span / 40 meter span
2026

Hualang12.JPG


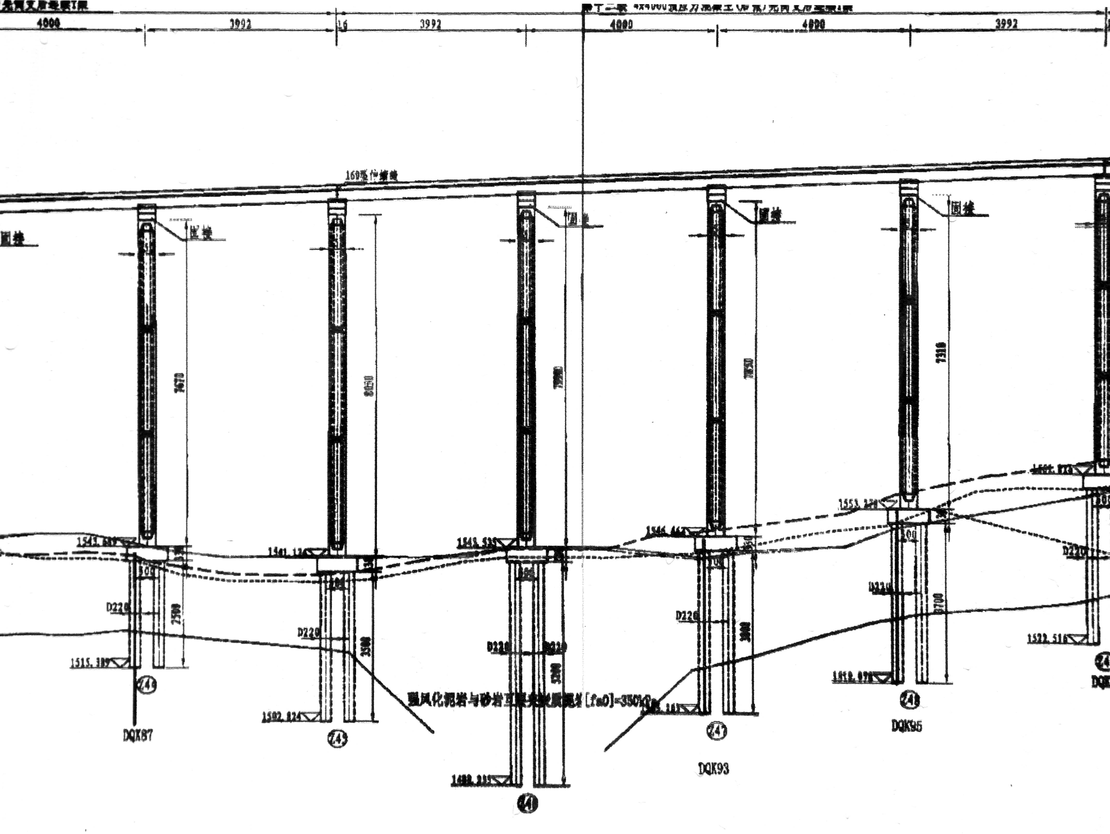
Hualang Bridge is one of the longest viaducts in Guizhou at 2,774 meters even if it is not particularly high with a maximum pier height of 80.5 meters.

Just to the north is the much taller and higher Shahe Bridge Anpan that is one of the largest cantilevered beam bridge viaducts on the Anpan Expressway. The main crossing has a span configuration of 3x150 meters on piers as tall as 157.5 meters. During planning the span was referred to as Tuguihe Bridge.

The Hualang Bridge is one of several spectacular high level crossings on the amazing Anpan Expressway that cuts across an extremely mountainous section of Guizhou Province between Panzhou near the Guizhou/Yunnan border and Anshun in Guizhou Province. The Anpan is the only expressway in the world to have five bridges that exceed 300 meters in height including Liuchehe, Tianmen, Guniuhe, Wumengshan and Liuzhi Bridges.

The Liuchehe and Guniuhe Bridges rank as the two highest arch bridges in the world with road decks over 400 meters high. The Tianmen suspension bridge is the third crossing of the Beipan River to exceed 500 meters in height.


HualangElevationWide.JPG

Hualang Bridge Elevation


HualangElevationClosePiers.JPG


Hualang6.JPG

Image by Eric Sakowski / HighestBridges.com


Hualang16.JPG

Image by Eric Sakowski / HighestBridges.com


Hualang17.JPG

Image by Eric Sakowski / HighestBridges.com


Hualang19.JPG

Image by Eric Sakowski / HighestBridges.com


Hualang10.JPG

Image by Eric Sakowski / HighestBridges.com


Hualang18.JPG

Image by Eric Sakowski / HighestBridges.com


Hualang9.JPG

Image by Eric Sakowski / HighestBridges.com


Hualang20.JPG

Image by Eric Sakowski / HighestBridges.com


Hualang.jpg


TuguiheSatellite.jpg

Hualang Bridge satellite image.


AnpanExpresswayNewestMapWest.jpg

Hualang Bridge location map.


AnpanExpresswayNewestMap.jpg